深圳酒店物业出租丨光明区毛坯7958平
月租金: 面议
信息编号:CZ00006976
7958 ㎡
建筑面积
商业酒店型
酒店类型
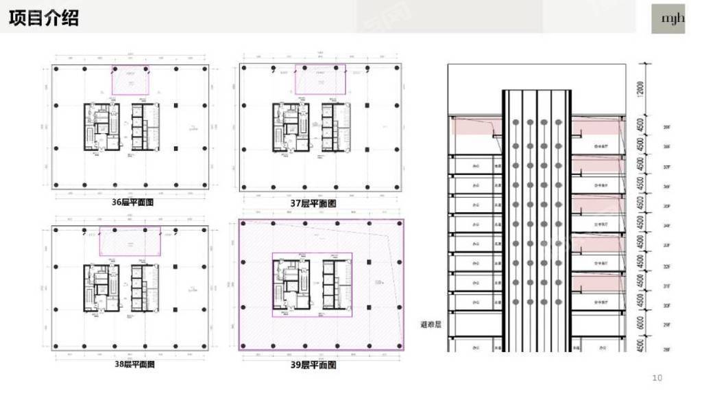
物业类型连层
地址广东 深圳 光明
联系人周先生
身份非中介
认证未实名认证
时间 举报
更新时间:2025-11-18
基本信息
  • 建筑面积:7958 ㎡
  • 物业租金: 面议
  • 物业管理费:
  • 合同年限:15 年
  • 酒店楼层:连层
  • 酒店类型:商业酒店型
  • 停车位:
出租详情

毛坯物业,7958整租不可分租


项目招商,无中介直租


项目处于光明中心区,是科学城的生活服务中心。 规划本片区居住人口23万人,就业人口274万人,规划用地面积8.18平方公里,开发总建筑面积1316万㎡。 片区主导功能是粤港澳大湾区科技创新、高新科技产业核心的综合服务配套区,光明区高质量发展的样板。 项目交通灵活便捷,可依托广深港及赣新高速铁路,深广中轴及深莞增程际铁路,外环高速公路等区域交通设施及城市轨道网络,实现30分钟到机场、口岸 对面就是科技馆及美术馆

位置
地址:广东 深圳 光明
更多推荐
上海 黄浦 单层2,300 ㎡
租金:¥22.80 万/月商业酒店型
上海 浦东 独栋13,200 ㎡
租金:¥110 万/月商业酒店型
上海 虹口 独栋15,000 ㎡
租金:面议商业酒店型
上海 静安 独栋5,000 ㎡
租金:¥78 万/月商业酒店型
上海 徐汇 单层1,000 ㎡
租金:¥10 万/月商业酒店型
上海 黄浦 单层873 ㎡
租金:¥14 万/月客栈民宿型
上海 静安 独栋2,059 ㎡
租金:18万商业酒店型
上海 静安 独栋2,000 ㎡
租金:15万商业酒店型
×
我要举报

请选择/填写举报理由:
  • 虚假信息
  • 失效信息
  • 手机空号
  • 中介冒充
  • 其他信息不属实
×
微信扫码
进入手机微信小程序查看
×
请输入您的期望价格
免责声明:
本网站信息由网站用户提供,其内容和图片的真实性、合法性、版权由信息提供者负责,最终以政府部门登记备案的信息为准。本网站信息凡涉及面积单位均为建筑面积,本网站不声明或保证内容之正确性和可靠性,租赁或购买该物业时,请谨慎核查。
郑重提示:
请您在签订合同之前,切勿支付任何形式的费用,以免上当受骗。